
Product features
Permanent magnet variable frequency and voltage regulation control
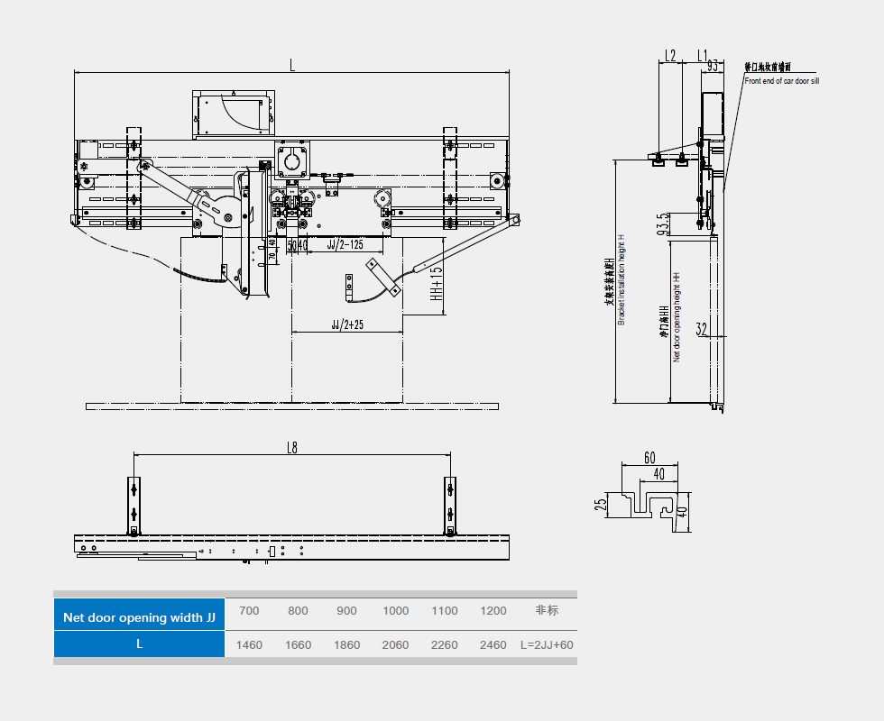
Operating voltage AC220V
Asynchronous door vane, synchronous belt drive
Optional mounting:mounted on top pf the car
Fully digitized close-loop control
Product Description



